| Prijs | € 395.000,- k.k. |
| Type object | Woonhuis, eengezinswoning, vrijstaande woning |
| Perceeloppervlakte | 490 m² |
| Woonoppervlakte | 111 m² |
| Aanvaarding | In overleg |
| Status | Verkocht |
In het gezellige en actieve dorp Oostwold deze fraaie vrijstaande woning met garage en ruime berging. Oostwold heeft een actieve dorpsvereniging, school, sportvelden en is op fietsafstand van Groningen. De woning heeft een moderne, lichte, ruime woonkamer met open moderne keuken, drie slaapkamers en een heerlijke besloten fraai aangelegde tuin welke het geheel compleet maakt. Op een paar autominuten naar de A7 met ontsluiting naar Groningen en Drachten.
Entree, hal, ruime woonkamer van 37 m2 met een open keuken van 10m2. Via de keuken naar de bijkeuken en badkamer. Via de bijkeuken naar de besloten tuin met berging en garage. De berging is ingericht als kantoor.
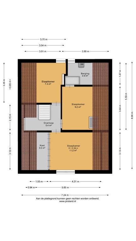
Drie ruime slaapkamer, berging en vaste kast
Fraai aangelegde tuin
Op fietsafstand naar Groningen en Leek. Op een paar autominuten naar de A7 richting Groningen en Drachten. Actief dorp met school en sportvelden.
| Referentienummer | 06682 |
| Vraagprijs | € 395.000,- k.k. |
| Status | Verkocht |
| Aanvaarding | In overleg |
| Aangeboden sinds | Donderdag 23 oktober 2025 |
| Laatste wijziging | Vrijdag 23 januari 2026 |
| Type object | Woonhuis, eengezinswoning, vrijstaande woning |
| Soort bouw | Bestaande bouw |
| Bouwperiode | 1932 |
| Dakbedekking | Dakpannen |
| Type dak | Zadeldak |
| Isolatievormen | Dakisolatie Gedeeltelijk dubbel glas |
| Perceeloppervlakte | 490 m² |
| Woonoppervlakte | 111 m² |
| Inhoud | 438 m³ |
| Oppervlakte overige inpandige ruimten | 3,7 m² |
| Oppervlakte externe bergruimte | 42 m² |
| Aantal bouwlagen | 2 |
| Aantal kamers | 4 (waarvan 3 slaapkamers) |
| Aantal badkamers | 1 |
| Ligging | Aan rustige weg Nabij school |
| Type | Tuin rondom |
| Hoofdtuin | Ja |
| Oriëntering | Noorden |
| Heeft een achterom | Ja |
| Staat | Prachtig aangelegd |
| Energielabel | D |
| Warmtebron | Gas |
| Bouwjaar | 2019 |
| Combiketel | Ja |
| Eigendom | Eigendom |
| Aantal parkeerplaatsen | 3 |
| Aantal overdekte parkeerplaatsen | 1 |
| Warm water | CV-ketel |
| Verwarmingssysteem | Centrale verwarming |
| Parkeergelegenheid | Vrijstaande houten garage |
| Tuin aanwezig | Ja |
| Heeft een garage | Ja |
| Heeft schuur/berging | Ja |
| Kadastrale aanduiding | Westerkwartier B 1725 |
| Perceeloppervlakte | 490 m² |
| Omvang | Geheel perceel |
| Eigendomsituatie | Eigen grond |